Проект дома СВ 132
от 9 566 000 руб.
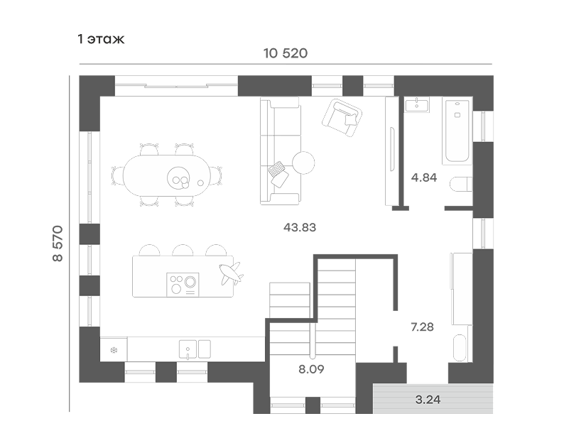
2 этажа.
3 спальни и 2 санузла.
Кухня-гостиная 36 м² с выходом на террасу.
132 м²
общая площадь
от 2,9м до 3м
высота потолков
фундамент
монолитная плита из бетона
стены
из керамзитоблока 290 мм, утепление 100 мм
фасад
из облицовочного кирпича или штукатурки
крыша
4х скатная, утепление 200 мм. на выбор металлочерепица / гибкая черепица
01
07
Черновая базовая
Если вы планируете самостоятельно выполнить разводку коммуникаций и все этапы внутренних отделочных работ.
- Электричество заведено до щитка
- Стены без дополнительного покрытия.
- Пол без стяжки и разводки коммуникаций
Черновая улучшенная
Самые сложные работы выполнены: залита стяжка пола, стены оштукатурены, разведено водоснабжение и отопление.
- Электричество заведено до щитка
- На стены нанесена штукатурка
- В полу разведены коммуникации (теплый пол, водоснабжение) и залита стяжка
White box
Все поверхности готовы к декоративным покрытиям. Осталось только определиться с отделочными материалами.
- Электрические выводы в каждой комнате
- На стены нанесена шпатлевка, можно клеить обои
- В полу разведены коммуникации (теплый пол, водоснабжение) и залита стяжка
Виды отделок
Расскажет о продукте и ответит на ваши вопросы.
Способы покупки
Действует на участки, готовые дома и строительство.
Актуальные программы:
— Ипотека для всех от 14,99%.
— Семейная ипотека от 6%.
— IT-ипотека от 6%.
Записаться на экскурсию
По готовым домам в селе Червишево и увидеть планировки вживую










